
发布日期:2025-11-20 来源: 网络 阅读量()
接待时间说明:售楼处每日固定接待时段为早上 9:00 至下午 18:00,涵盖工作日及周末。若遇法定节假日,接待时间将提前通过项目官方公众号、电话等渠道告知,建议您出行前留意最新通知,避免跑空。
提前预约建议:为节省您的宝贵时间、提升咨询效率,我们强烈建议您提前通过售楼处官方电话预约到访时间。预约后,专属置业顾问将提前梳理项目资料、预留接待时段,您到店后可直接进入深度沟通环节,无需额外等待。
现场服务配套:考虑到洽谈过程中的舒适需求,售楼处现场持续为到访客户免费供应饮品与点心。其中包括现磨咖啡、醇香茶饮及多款精致甜点,您可在与顾问沟通间隙自行取用,享受轻松的咨询氛围。
接待范围提示:本售楼处仅面向有真实购房需求的个人及家庭客户提供服务,暂不接待中介机构、分销人员及无关从业人员。若您属于上述范畴,请勿进入售楼处打扰正常接待秩序,感谢您的理解与配合。
温馨提示:为保障现场接待秩序与客户沟通效率,本次接待暂不接受中介渠道对接,感谢您的理解与配合。
而近期,闵行U8国际官网颛桥板块的尚湾林语,用“左手大城兑现、右手未来潜力”的优势,打破了市场困局。
· 从“当下宜居”看,项目核心优势已然成型:邻近5号线剑川路站,通勤便捷度拉满;主城区超级大盘自带成熟生活圈,周边还有龙湖天街、万达广场等商业环绕;同时自带七宝中学教育集团,让居住质感再上一层。
· 从“未来潜力”看,项目成长空间可期:尚湾林语不仅位于主城区内,更是拥有“大零号湾+莘庄产业区+闵行经济技术开发区”三大超级产业核心辐射!
更难得的是,尚湾林语还是一座罕见的生态之城,项目自带约101万方自然秘境+水系,这在全上海来看也是独一份!
其中,尚品颛溪农场是“尚品新境”的生态核心,购房客户通过现场活动即可获得专属农场!
并且有专业团队实现四季轮作与有机种植,提供从土地到餐桌服务;涵盖全龄自然体验与多元社交场景,以健康食养、亲融社区及四季社群活动,以上海罕见的“生态会客厅”,赋能大城生活价值。
从水景、中央会客厅到儿童活动场地,再到功能丰富的架空层,每一处景观节点都实景呈现,以后下楼遛娃、散步,就是一场沉浸式的惬意享受。
甚至就连样板间也设在实体楼内,确定性更强;内部空间的尺度感、装修用料的扎实度,完全称得上同级翘楚。
“大盘”凭借其庞大的社区规模,在规划布局、配套和景观打造等方面都有独特的优势。正是由于这些特点,“购买大盘”的观念逐渐成为越来越多购房者的共识。
而尚品新境,规划总占地面积约180万平方米,是一座上海之前从未有过、融“都荟、生态、生活”三位一体的的超级大城。
要知道,全上海目前只有两座体量达到约180万方的综合体,一座是位于内中环的徐汇滨江金融西岸,另一座就是尚湾林语。
不仅仅是臻稀属性拉U8国际官网满,这座超级体量的综合体还以绝对的实力,生动地演绎了什么叫作“人无我有,人有我优”,三大组团共同成就新一代多元化的生活体验:
作为大城的“活力引擎”,尚品天地直接瞄准业主的日常消费与休闲需 ——不仅规划了中轴林荫大道、21世纪浪漫十字街区,还打造了约3万方的活力文体中心。
重中之重是这里入驻了七宝中学教育集团,与项目仅一街之隔。据悉,这里将建设一所幼儿园及初中(来源今日闵行)。
作为闵行乃至上海的教育标杆,七宝中学教育集团的到来,必将大幅提升周边的教育氛围。
内部规划自然秘境+水系,占地面积高达约101万方,远超闵行目前体量最大的闵行体育公园(总体量约84万方),更是相当于人民公园的8倍(总体量约12.6万方)!
尚湾林语住宅组团,被尚品天地与尚品颛溪包围。商品住宅用地占比仅10%左右。
从以上三大组团的功能组合来看,像尚品新境这样,既有大体量商业街区,又有高水平学校,还有超大规模生态资源,在上海主城区实属罕见。
更重要的是,尚品新境不是停留在规划阶段,而是在上海地产集团雄厚资源注入下,正以肉眼可见的速度强势兑现!
预看房活动结束后,业主整体满意度非常高,不少业主主动在社交媒体为项目的兑现力点赞。
建筑外立面整体采用大面积玻璃、铝板线条装饰以及仿石艺术涂料,设计满是现代感,线条简约流畅,历久弥新。
尚湾林语住区规划了多个架空层,包括儿童活动区、会客厅等功能场景,为大家提供了一个舒适温馨的户外功能场地。
而且,架空层运用面砖并搭配金属格栅吊顶进行打造,使其既高端大气又经久耐用。
社区外公规划了六个口袋公园,风格各异,无论是想要休憩放松、悠然散步,还是亲子游玩,均能举步即达。
非常震撼的是,尚湾林语四个地块约18.5万方商品住宅,同步在建,并且已是准现房状态,预计今年底/明年初交付,堪称是一座大城拔地而起!
随着超级大城规划不断兑现,尚品新境“顶层规划+成片开发”的能量逐步释放,尚湾林语的价值也在不断攀升中,此时入手可谓正当时!
低容积率+超高得房率+超配精装,让项目在总价约500万级新盘中,拥有无与伦比的性价U8国际官网比!
很多项目都会选择别墅+高层的产品配置,以获得更高的销售利润,而尚湾林语则选择打造全小高层社区。
这意味着社区将拥有更大的楼间距(最大约42米),和更大的景观面积,给业主带来更好的景观视野与室内采光等居住体验。
市面上大多数500-600万级项目的得房率普遍为73-75%,这样的百平3房户型很难有舒适度可言,北向房间通常无法满足居住需求,往往只能做书房,实际上就是“2+1户型”。
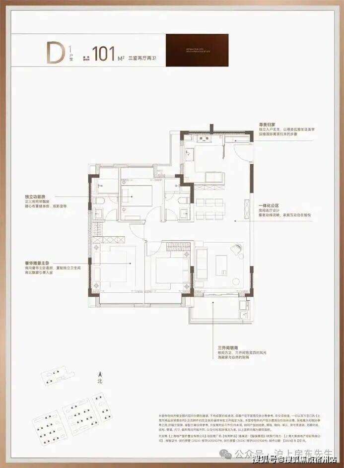
以主力建面约101㎡3房2卫户型为例,得房率高达约80-81%,实际使用空间高达约80-82㎡,甚至超过了市面上部分洋房产品。
三房均能做卧室,这是一个改善型的“线房”,可更灵活满足家庭结构成长需要,避免常规百平“2+1房”后续置换的高额成本。
客餐厅阳台一体化,非常舒适的家庭活动空间。尤其餐厅位置,可以放下六人桌,而一般户型只能贴墙放四人桌!全卧U8国际官网飘窗,也进一步延伸了室内使用空间。
这样的得房率,一方面提高了居住体验,同时也将切实降低购房者的实际购房成本!
比如,以项目建面约101㎡户型为例,约80-81%得房率,套内U8国际官网面积高达约80.8-81.81㎡。
500万级的三房产品,配备了中央空调和地暖,厨具用了西门子,卫浴是唯宝、高仪,空调用的日立,地暖及热水器是威能(或同等品牌,以具体交付为准)。
直线号线可以直达莘庄城市副中心,并换乘1号线到达徐家汇、人民广场等核心CBD。
;医疗有上海第五人民医院等为健康保驾护航;更有闵行科创公园、金塔公园等生态公园环伺左右。而
,尚湾林语不仅位于主城区内,更是拥有“大零号湾+莘庄产业区+闵行经济技术开发区”三大超级产业核心辐射!
,目标到2035年打造成为世界级“科创湾区”之一,形成万亿市值!(来源:推进“大零号湾”科技创新策源功能区建设方案)
。而从职业来看,科研和教育行业的业主占比接近五成,来自互联网、医药等高薪行业的也不在少数。
:用地面积5.3平方公里,重点培育科技创新、商业商贸、文化等功能,形成服务闵行南部地区的特色服务中心。
,在这样的黄金区位正芯,还能拥有尚品新境这样可成片开发,具有生态特色的大城项目,放眼主城区也难觅他家!