
发布日期:2025-11-29 来源: 网络 阅读量()
看房需提前来电预约登记请务必致电与销售确认时间,预约客户可优先进入销售现场,避免空跑,感谢您的支持!
在这政策关键的窗口时期,认房不认贷的落地,给了刚需购房者一个重大利好!如今500万级想置业大虹桥优质红盘,还有机会吗?
放眼2023年下半年,大虹桥的新房联动价几乎全线万/㎡,华漕联动价6.95万/㎡。而国贸虹桥璟上5字开头的价格,格外突出,成为500万级中的“热门红盘”!
占据科创赵巷的高地,距离17号线嘉松中路站直线米,由国企国贸集团倾力打造,板块站位+地铁+国企品质+低总价上车,无论哪一点都是同价位段新房中十分能打的存在。
手握500万级预算,正是处于一个“既要又要还要”的阶段。便捷的通勤,好的地段站位,舒适的居住体验,缺一不可,这也让不少人把目光放到蓬勃发展的大虹桥。
然而随着新房联动价的一路上涨,一张图就可以看出当下的大虹桥有多贵!往前两站地徐泾,买三房需要600万级往上了,两站地铁,买三房劲省100万,这样的性价比实在太香!
作为大虹桥2023年下半年仅剩的500万级红盘,国贸虹桥璟上是不容错过的机会!
在上海2023年第三批土拍第二场中,赵巷镇佳环路东侧B2-01地块最新联动价为56000元/㎡,涨了1500元/㎡,而它就在项目南侧!可以说,以后想再买赵巷,就要用更贵的价格了!上车门槛也更高!
除了上面说到的17号线+TOD商业体之外,这里还有一个青浦区“十四五”重磅规划的千亿级产业园区:上海市西软件信息园。
作为大虹桥的一个新爆点,科创光芒着实耀眼。这里的主体是市西软件园,定位为千亿级产业园区,计划2025年预计实现建筑面积约400万㎡,经营收入达到1000-1500亿,从业人员十分可观。
大虹桥,在经历了以虹桥枢纽为核心的轨陆空大交通时代、以国家会展中心为核心的大会展时代、以虹桥商务区为核心的大商务时代之后,已经汇集了世界级的核心资源,人流、物流、信息流凭借着大交通在此汇聚,助推商务能级不断攀升。
在此基础之上,大虹桥,正在迎来属于自己的“大科创”,虹桥正式迈入4.0时代,而大科创的核心,正是赵巷。
市西软件园核心位置就在嘉松中路站两侧,这里正打造漕河泾赵巷科技绿洲,一共六个地块。
截至2023年4月,竣工面积超44.5万平方米,累计引入企业约200家,其中实体企业57家,数字经济领域企业占比70%,包含汤恩、欣巴、公牛等重点产业的多家高新技术企业、上市公司、研发总部。(信息来源in赵巷)
在市西软件园东侧,在建网易上海国际文创科技园,预计2024年建成并投入使用,引入2万员工。
在另一侧,大名鼎鼎的北斗西虹桥基地也正在建设中。周边还聚集了海克斯康、熙菱、普利特等知名企业。相信在龙头效应下,会有更多优质企业涌入。
产业聚集、人口导入,现在已经有大量居住在虹桥枢纽、徐泾、甚至传统市中心的人来赵巷工作,未来随着企业的快速入住,将会汇聚更大量的高科技人才。赵巷,下一个张江,可以期待!
五个新城可能也会有类似的科创产业,但它们大部分在规划中,而赵巷是实实在在开始兑现了,更具确定性。且从量级和能级上看,赵巷也明显更胜一筹。
2022年,国贸控股集团六度上榜《财富》世界500强,排名106位,较2021年跃升65位,再度刷新历史最高位次。
作为深耕上海的老牌国企之一,国贸地产近年来已经筑造了多个住宅标杆,例如国贸天悦、国贸佘山原墅和国贸凤凰原等“原系”项目,十年来只打磨一个产品线,但每一个楼盘,又在讲述不同的城市韵味,从佘北大型居住地,到佘山脚下、G60科创走廊,再到热门潜力板块临港片区……是用住宅产品力不断内卷,积累了口碑极高的产品力和交付力。
此次在大虹桥,国贸地产在“原系”之上进行全面升级,推出了上海第一个“上系”作品,为购房者带来更高层次的品质和享受。
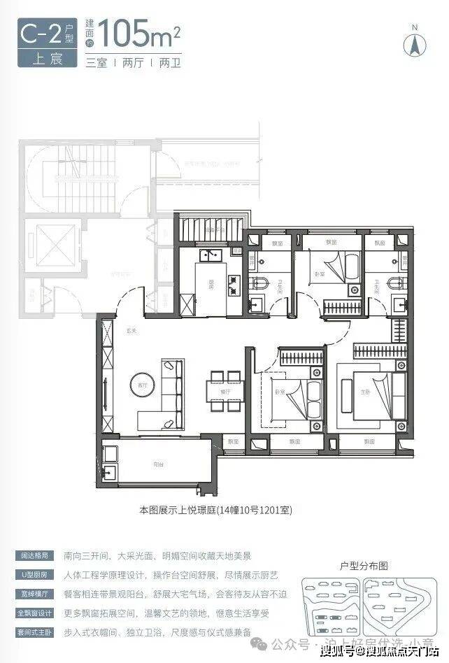
建面约105㎡3房2卫有两种风格(宽厅、竖厅),尤其是宽厅户型,设计格外惊艳。
对比目前市面上同等面积产品,无论在空间感,还是整体功能布局上,国贸虹桥璟上这款105平三房两厅产品均具备爆红潜质:将客厅面宽最大化到约5.5米,这种尺度感一般在四房大平层产品上比较常见,合理利用阳台与大落地窗,不仅延伸了视野,还将餐客厅与阳台连成一体,让整体空间过渡自然,更显通透、明亮;
优越的窗墙比,可以最大限度将优美的景观纳入眼帘;南向三开间面宽更是达到了约11.5米,可以说市场同户型面积段产品很难做到这样极致化;功能房间以舒适度为导向服务生活,尺度均做到了当下主流产品水平之上;并且全屋附赠6处飘窗,高附加值令人心动。
在对百平左右的三房,功能性要求越来越高的今天,国贸虹桥璟上约105㎡户型做到了每一平空间的合理利U8国际官方网站用,实现了尺度感与功能性兼备,出众产品更出圈,当然备受欢迎。
项目129平四房两厅两卫配置,功能齐全,满足终极置业需求;三开间朝南,向阳而居,6.1米侧厅布局,枕水而居,尽享滨水花园景观视野;开敞式书房,空间感升级,侧向飘窗,景观渗透更加充分。
装标方面,项目配置市场上为数不多的全屋智能家居系统,中央空调、地暖、烟灶等大件均为国内外一线品牌;此外,厨房大单槽及抽拉龙头、凉霸、净水器等配置更显细节与人性,全屋卫生间也均为智能马桶,可以说配置方面,国贸下足功夫。
舒适主卧套间,私享静谧生活;餐客厅一体,搭配阔绰的厨房,让生活姿态相得益彰;把阳台搬进卧室,亲近自然尽在咫尺,动静分离,私密性强;边套,采光通透度佳。
总体来看,这样一套约129平的户型做到四房两厅两卫,做到市面上极度稀缺的边厅设计,采光面、景观效果都极佳。户型整体没有浪费面积、利用率高,设计非常合理。
4房又可以做到3房朝南的设计,居住舒适度非常高,可满足三代同堂、二胎家庭的需求。开发商在户型设计上非常细心,一切都为了让业主有一个更好的居住感受。并且我们也是精装修交付的,后期业主只需购买家具就可以入住了。
国贸虹桥璟上所在位置,拥有U8国际官方网站天然的黄金水系,围绕水资源形成的滨水河岸,加上代建公共绿地,给了这个项目的“总设计师”团队更多灵感。
以水为海,以岸为滩,以陆地为岛,以草木装点,因地制宜,巧妙运用海洋中的美好元素,将现代的材料和表现手法予以重构,营造让人的情感与周边环境发生共鸣的美好场景。
仅这些新颖的打造理念,就已经让人对国贸虹桥璟上项目的未来生活充满了向往!
项目带来的是舒缓的、生态的、健康又有活力的生活场景,会是多么的难得,如果要把这款产品放在板块内来比喻,他就是像是一个浪漫的科创理科生。而虹桥这样一个理性的区域恰恰需要这样的产品。
社区内部拥有两条天然Y型水系,国贸因地制宜,落地海洋美学的“海上森屿”概念,打造约19万方未来岛屿社区。
通过自然水系,以一座代建外部滨水城市景观绿地、两座内部栖岛,将滨水、公园与社区的“3L”生活融合,并以N+的休闲空间形成独具特色的森屿优活的美学世界,以浪漫和想象力为当下人们追求的自然与闲适的生活,带来了生活范本。
据悉,沿滨河岸线布置功能场地 , 打造更多的水岸生活场景;东地块的东侧还会打造一个约1.8万方的水岸公园,公园北角还将修建篮球场;另外社区内部还将打造大面积架空层,功能上更全面满足业主日常活动需要。
众所周知,大虹桥U8国际官方网站之所以能有如今的极高热度,交通便捷是一个不可或缺的重要因素。然而随着土地资源的不断开发,离地铁越近的项目越能得到购房者的青睐。同时,赵巷是上海著名的国际别墅住区,居住在这里,可以享受赵巷顶级别墅区的优渥配套和国际质感的生活氛围。
国贸虹桥璟上距离地铁17号线米,从嘉松中路站出发,2站到徐盈路万科天空之城商业,3站到蟠龙天地,4站国展,5站进虹桥火车站,并无缝换乘2号线号线直抵淞虹路站、静安寺站、南京西路站等核心商务区。
经过多年的发展,赵巷国际别墅区已经拥有了非常丰富的生活配套。宜居属性毫不逊色!项目周边拥有沃尔玛旗下高端会员制商店山姆会员店,以及青浦奥特莱斯和合生新天地两大商业中心;此外,由日本现代建筑大师安藤钟雄先生匠心打造的“元祖梦世界”,是中国首座专门为儿童定制的乐园和商业综合体,上海童心地标。
这条嘉松中路已经打造成了一条购物休闲消费带,是目前很多上海市区家庭周末游玩目的地,也是赵巷的新名片,休闲综合体一路连缀,周末逛街不重样。
作为国际别墅区,赵巷的生态资源同样羡煞旁人!赵巷体育公园、4A级景点佘山森林公园、辰山植物园和月湖雕塑公园,都是周末休闲度假的好去处;佘山国际高尔夫俱乐部、银涛高尔夫俱乐部等休闲娱乐配套为年轻菁英们提供更高端的社交娱乐平台。
17号线嘉松中路站将进行TOD开发,据最新消息:该项目或将成为大虹桥区域首个日式购物中心引进日本住友商事颇具代表性的商场产品线“Terrace”系列。
医疗方面,项目直线公里可到德达医院,直线 公里可到到上海市泗泾医院,直线公里到上海医大医院,直线 公里是复旦大学附属中山医院,为业主和家人的健康保驾护航。
在购房决策中,新房与二手房的选择需结合预算、需求和偏好综合判断。相较于二手房,新房的核心优势主要体现在居住体验、产权安全性、个性化空间、长期成本等多个维度,具体可拆解为以下几方面:
新房最直观的优势是 “全新”,能避免二手房常见的居住损耗问题,直接带来更优质的居住感受:
房屋品质无损耗:墙体、管道、电路、门窗等均为全新,无需担心二手房可能存在的隐藏问题(如水管老化漏水、电路过载、墙面开裂发霉等),入住后短时间内基本无需大额维修,省心省力。
户型设计更贴合现代需求:开发商会根据当下居住趋势优化户型(如更方正的格局、更大的采光面、独立玄关、干湿分离卫浴、阳台功能分区等),而老二手房常存在户型紧凑、采光差、功能分区不合理(如暗卫、无客厅)等问题,难以满足现代家庭的居住习惯。
社区配套更完善先进:新房社区通常配备更齐全的公共设施,如儿童游乐区、老年活动中心、健身区域、地下停车场(车位配比更高)、24 小时安保、智能门禁(人U8国际官方网站脸识别、密码锁)等;部分高端项目还会引入新风系统、中央空调、智能家居接口等,提升居住舒适度。
二手房交易因涉及 “产权历史”,可能存在复杂风险,而新房的产权和交易流程更清晰、安全:
产权清晰无纠纷:新房的产权直接从开发商手中获取,不存在 “一房多卖”“抵押未解除”“户口未迁出”“产权年限缩水严重”(部分老二手房土地使用年限已剩 30-40 年)等问题,只需完成网签、备案、办理不动产权证,流程透明,风险极低。
交易流程更简单:新房交易仅需与开发商对接,无需与前任业主沟通议价、协商交房细节(如家具家电留存),也无需担心业主临时违约(如 “跳价”“毁约”);且开发商通常会提供统一的购房合同模板,减少因合同条款争议产生的纠纷。
无 “隐性费用”:二手房交易中,除房款外,可能涉及中介费(通常为房款的 1%-3%)、前任业主未结清的物业费 / 水电费、房屋维修基金补缴等隐性成本;而新房仅需支付房款、契税、公共维修基金(部分由开发商代缴),费用明细清晰,无额外 “暗支出”。
新房(尤其是 “毛坯房”)为业主提供了完整的个性化改造空间,满足不同家庭的审美和功能需求:
毛坯房:从 0 到 1 定制:毛坯房可完全按照自己的喜好设计装修风格(如北欧风、极简风、新中式),规划空间布局(如打通书房与客厅、定制嵌入式柜体),选择环保的装修材料(避免二手房装修残U8国际官方网站留的甲醛等有害物质),打造 “专属理想家”。
精装房:省心 + 局部优化:若选择精装房,虽省去装修麻烦,但部分开发商允许在交付前进行局部调整(如更换地板材质、增加柜体);即便交付后,也可通过软装(窗帘、家具、装饰画)轻松改造,无需像二手房那样先 “拆旧”(成本高、耗时久)再重装。
从长期居住和资产角度看,新房的 “隐性成本更低”,且在特定情况下增值潜力更优:
维护成本低:如前所述,新房的建材、设备均在质保期内(水电管线 年),若出现问题可直接联系开发商维修,无需自担费用;而二手房的维修多需业主自行承担,且随着房龄增长,维修频率和成本会逐渐上升(如更换热水器、暖气管道等)。
物业与社区管理更规范:新房社区的物业公司通常由开发商直接指派(或通过招标选择品牌物业),服务标准更统一(如定期保洁、绿化维护、设施检修),且初期物业与业主的沟通更顺畅;老二手房社区的物业可能存在服务滞后、管理松散(如垃圾堆积、公共设施损坏无人修)等问题,影响居住体验和房屋保值。
增值潜力:核心区域新房更具优势:若新房位于城市新兴板块(如政府规划的新区、地铁沿线),随着周边配套(学校、医院、商业体)的逐步落地,房屋增值空间可能大于同区域的老二手房;而二手房的价值更多依赖 “成熟配套”,增值潜力相对稳定,但上限可能较低(除非位于核心学区)。
交房周期灵活(部分情况):部分新房支持 “期房” 购买(需注意开发商实力,避免烂尾风险),若选择 “准现房” 或 “现房”,则可快速入住;而二手房虽 “即买即住”,但需等待业主腾房、办理过户,周期可能与新房相当(尤其若业主需先买房再腾房)。
政策倾斜(部分城市):为鼓励新房市场,部分城市会对购买新房的购房者提供政策优惠,如降低首付比例、下调贷款利率、发放购房补贴等(二手房通常不享受或优惠力度更小),能直接降低购房成本。
看房需提前来电预约登记请务必致电与销售确认时间,预约客户可优先进入销售现场,避免空跑,感谢您的支持!返回搜狐,查看更多